农村楼房加层改户型可以拿 新农村住宅典型户型
一、农村楼房加层改户型可以拿
1、农村楼房加层改户型可以?

2、我认为是可以的比方说一层楼房或者两头带阁楼的,假如你要是加二层的话,其实也可以不带两头阁楼也行,其实最好的我认为还是上层,下层盖的一样,比较标准看起来美观一些如果自己家二层的话,也可以任意不和下边一层一样
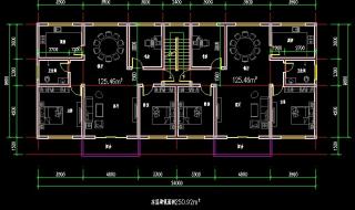
二、6x7米农村自建房户型
1 6x7米农村自建房的户型可以根据设计和需求而定,没有标准答案。
2 如果按照常规的设计原则,这样的户型可以考虑布局合理,满足家庭基本生活需求,比如分配好卧室、客厅、厨房、卫生间等功能区域,同时充分利用空间,如墙面柜子、储物空间等。
3 当然,对于不同的人群、不同的家庭,对户型的需求可能也有所不同,可以根据实际情况进行灵活设计,以满足住户的需求。
三、农村房有何房型
1、我家就是世代农村的,地地道道的农村人,可以简单的回答一下这个问题!
2、在以前的时候,农村房子基本都是用石头垒盖而成,外面再用泥巴加上稻草封上,户型多数都是坐北朝南,东西屋的,一进门就是厨房,有大锅有炉子,土质地面,木质窗户框!有平顶的,还有斜顶的,平顶的可以晾晒一些农作物,比如玉米,黄豆之类的!而斜顶的排水特别好,房顶不容易有积水,房子更不容易漏水,表皮多数用油毡纸加上沥青封住,非常经得住风水日晒!
3、后来生活慢慢的变好了,南方农村房子开始有了很多变化,有的盖了二三层小楼,有的已经盖起来了大瓦房,就是用砖加水泥盖成的,住着更舒服,也能很有效的防风挡雨,房型也有很多,因为生活水平提高了,多数都是小别墅的样子,有非常普通中式,也有欧美风,西班牙风等等,而平房大多数都差不多,没有太大的改变,只是材料变好了,装修等级提高了,但是南方房子多数墙体不厚,因为气候原因,不是特别冷,不用像北方一样抵御很大的风寒,所以用料比较少,比较省钱!
4、而北方的土房还是持续了很久的。直到2000年以后才普遍是砖瓦房,但是房型还是没什么太大变化,基本都是方正的,顶多面积大了一些,用料更好了,墙面都贴上了瓷砖,房顶也是彩钢瓦的,基本以红色蓝色为主,室内地面也是瓷砖了。随着时间的变化,也有很多农村房子,屋里也有了洗手间,马桶,热水器,淋雨,非常漂亮食用的厨房,橱柜,理石台面的操作台,防盗门,还有的已经改成地暖的,冬天只要烧个小型锅炉,房子就会变得很暖!
5、这些是我自己在农村见过的房子,还有很多是我不知道的,毕竟没有走过太多地方,知道的很少,比如西北,新疆,西藏,云南之类的农村房子肯定还有很多不一样的,还有很多木制的,有知道的朋友欢迎谈论回答,谢谢啦!

